2020年05月08日
第04版:特别策划 PDF版

淮阳平粮台 今后是啥样

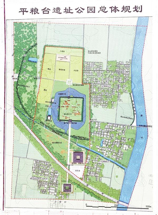
平粮台古城遗址公园总体规划图。 资料图

工作人员正在回填考古发掘的探方。 记者 金月全 摄

平粮台古城遗址发掘区内经过规划的排房、城内排水系统和“中轴线”道路。资料图

□策划:李伟 执行:王慕晨

几十年的考古,印证了平粮台古城遗址的价值;几代人的保护,让平粮台古城遗址得以留存。但对于初识这片土地的人来说,平粮台古城遗址似乎没有太大观赏性。“地下气象万千,地上土丘一片。”淮阳区平粮台管理处主任贾亮在谈到平粮台古城遗址时,常把这句话挂在嘴边,“平粮台遗址考古的重大学术价值是毋庸置疑的,但是学术价值与普通人眼中的观赏性之间往往会有极大的落差。怎样改变平粮台在普通参观者眼里‘一座普通的土台子’的观感,是需要解决的问题。”

●如何保护 原真保护与“复刻传统”并重

历史,是一个民族精神文明的延续,是一个承前启后的时代背影。平粮台古城遗址未来将成为极具吸引力的城市新景观,对其有效的保护是中国城市化进程中的一场保卫战。记者走访得知,目前平粮台遗址保护范围四至边界为:东至蔡河堤;南至平粮台古城遗址现有南围墙外100米;西至淮阳区二环路东路沿;北至平粮台古城遗址现有北围墙外400米。保护范围分二级:重点保护区以平粮台古城遗址城壕范围外界外扩5米为界,保护范围内除重点保护区外的区域为一般保护区。那么,如何对遗址进行有效的保护呢?

原真保护——突显龙山文化

“一定要忠实于遗址原貌、原状,要保持遗址的原真,对经过考古发掘且保存状况较好的遗址,进行原状、原貌整体保护。像不可移动文物,如古建筑、古墓葬、石像、雕像、碑刻等进行原状、原地保护;可移动文物需要放在特殊的环境中,一般送进库房保护起来。”贾亮说。“比如我们发现最早的排房、最早的排水管道、最早的‘中轴线’、最早的车辙等遗迹要重点展示,像发现的这五六排排房,就挑选其中保存比较完好的进行原状保护。”忠实于遗址原貌、原状,是文物保护的基本原则之一,也能真实展现龙山文化。

“复刻传统”——打造遗址古韵

“文物被破坏或损伤后就不再有历史感了,但是现在科技比较发达,我们可以运用新技术、新手段进行复刻。能复原的复原,不能复原的也不能向人们展示错误的历史。复刻出来的遗产也要符合历史的韵味儿。”贾亮说。“在遗址大门口处的‘门卫房’,我们采用的就是在原址上进行一比一复刻。目前我们从挖掘的地基可知‘门卫房’墙皮的建筑材料,但是,‘门卫房’的‘茅顶’到底是‘人字坡’还是‘一字坡’,现在还不知道。”几千年前的“门卫房”到底是什么样子?经过专家学者的不断深入研究方可得知。记者在平粮台古城遗址的研究室内看到,一名工作人员正在对散乱的陶片进行复原,缺少的部分用石膏代替,大致的形状能够拼凑出来。

●如何展示 多种方式让历史“活”起来

遗产展示对于平粮台古城遗址来说,是一项重大挑战。“运用考古专家讲解和模型、视频等形式的展示,还可以利用AR技术让游览者进行现场体验,穿越到古代。”贾亮说,“看得懂,遗址的保护和展示价值才能发挥出来,遗址保护和展示的目的才能达到。在看得懂的基础上,更要让大众看得有趣、看得津津有味”。

据了解,平粮台古城遗址展示内容为:文物本体——平粮台古城遗址整体面貌及格局、各时期典型墓葬、文化层剖面、出土文物;历史信息和文化内涵——平粮台古城遗址的文物价值、龙山文化、平粮台特色文化层叠加状况、文化遗产保护知识等;周边环境——包括平粮台古城遗址周边有特色的水体环境、农业环境。上述内容通过以下3种形式进行展示。

本体展示 展现千年远古光景

据了解,本体展示具体分为3个方面。景观示意展示:结合考古发掘报告,以乱石、植被铺装等方式标识重要的文化基址、墓葬信息。复原展示:保留南门遗址的复原展示工程,并增加西侧城墙剖面遗迹复原展示以及重要墓葬复原展示。对M4、M16、M157、W7等墓葬进行复原展示。复原展示应在充分论证其必要性的前提下进行,现场需辅以标识说明。文化层剖面展示:结合被干扰的文化层剖面状况,选取其中有代表性的地点进行原状展示。

博物馆展示 探寻千年遗址的神秘

淮阳平粮台将新建博物馆,利用现代信息技术,结合传统实物展示方式,展示遗址的历史信息和价值,包括进行遗址保护知识的普及教育工作。结合研究成果,对平粮台古城遗址规模、形制进行虚拟展示,并利用虚拟展示中的互动环节,严格按照考古发掘成果,对重要的墓葬进行模拟展示。对现存于其他博物馆的平粮台出土文物,可定期进行合作联展。

周边环境体验性展示 亲近古老文明

记者了解到,周边环境体验性展示将根据平粮台古城遗址南侧溪流及东侧蔡河水资源的整治状况和环境改造进度,进行生态环境休闲展示。根据周边村落环境控制状况及特色活动开展状况,远期纳入更丰富的展示内容,包括特色民居、特色集市、特色农业等。

2020-05-08 2 2 周口晚报 content_98537.html 1 淮阳平粮台 今后是啥样 /enpproperty-->